デリヘル 平面図 求積図

デリヘル 風俗営業 開業手続き

デリヘル 開業
 
かつて僕は、風俗店へ足を運ぶたびに謝礼を貰っていた。そんな僕が今では開業の手続きや経営サポートを行っている。 おそらく誰よりもこの業界の経営者と接してきただろう。また、ジャンルこそ違えども、祇園に店を持ったこともある。 誰にも真似できやしないバックボーンが僕を支えている。
 

090-8483-9508
 042-452-6477
届出の手続きだけなら誰でもできる。けど、違いが出るのは、開業後の実務的アドバイス。
デリヘル開業届出書き方見本(有償) LinkIcon

 
  • HOME
  • >
  • デリヘル
  • >
  • デリヘル 平面図 求積図 その他届出書類作成
デリヘル 平面図 求積図 その他届出書類作成 サイト更新日 2025-08-15   デリヘル他、各種契約書関係はこちらへどうぞ。
デリヘル 開業 モバイル版はこちらへどうぞ。
お問合わせ
090-8483-9508   / 042-452-6477
またはメールにてご連絡下さい。
電話でのお問い合わせについては平日夜、もしくは土日祝日においても事務所にいる限り対応しております。 不在のときでも携帯までご遠慮なくおかけください。(~22:00)

メールでのお問い合わせ、ご相談は、下記までご遠慮なくお願いします。

※ご利用のメールソフトによっては自動で送信されず、再度手動で送信しなければならない場合があります。数日経過しても返信がない場合、メールソフトで送信済であるかお確かめ願います。
■業務については、行政書士業務、社会保険労務士業務での範囲内にて行います。
■平日夜、土日祝日でもご遠慮なくお問い合わせ下さい(~22:00)。夜中の時間帯での相談も受け付けています。
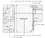
デリヘル開業 平面図・求積図

平面図・求積図

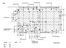
デリヘル開業 平面図・求積図

平面図・求積図

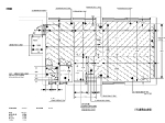
デリヘル開業 平面図・求積図

平面図・求積図

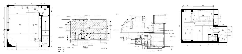
デリヘル開業 平面図・求積図

平面図・求積図

デリヘル開業 平面図・求積図、その他届出書類作成

デリヘル開業にあたって、届出書類の作成をいたします。中でもめんどうなのは、平面図や求積図の作成でしょう。物件を探した際、不動産屋でもらった資料をそのまま流用するわけにはいきません。当事務所では、デジタルレーザーメーターを使用し、風俗営業許可申請に準じた求積図を作成します。

平面図 求積図
平面図 求積図